40 Village Lane
Hanover, MA 02339

Whiting Village Neighborhood

Single Family Home

$909,900

Whiting Village Neighborhood

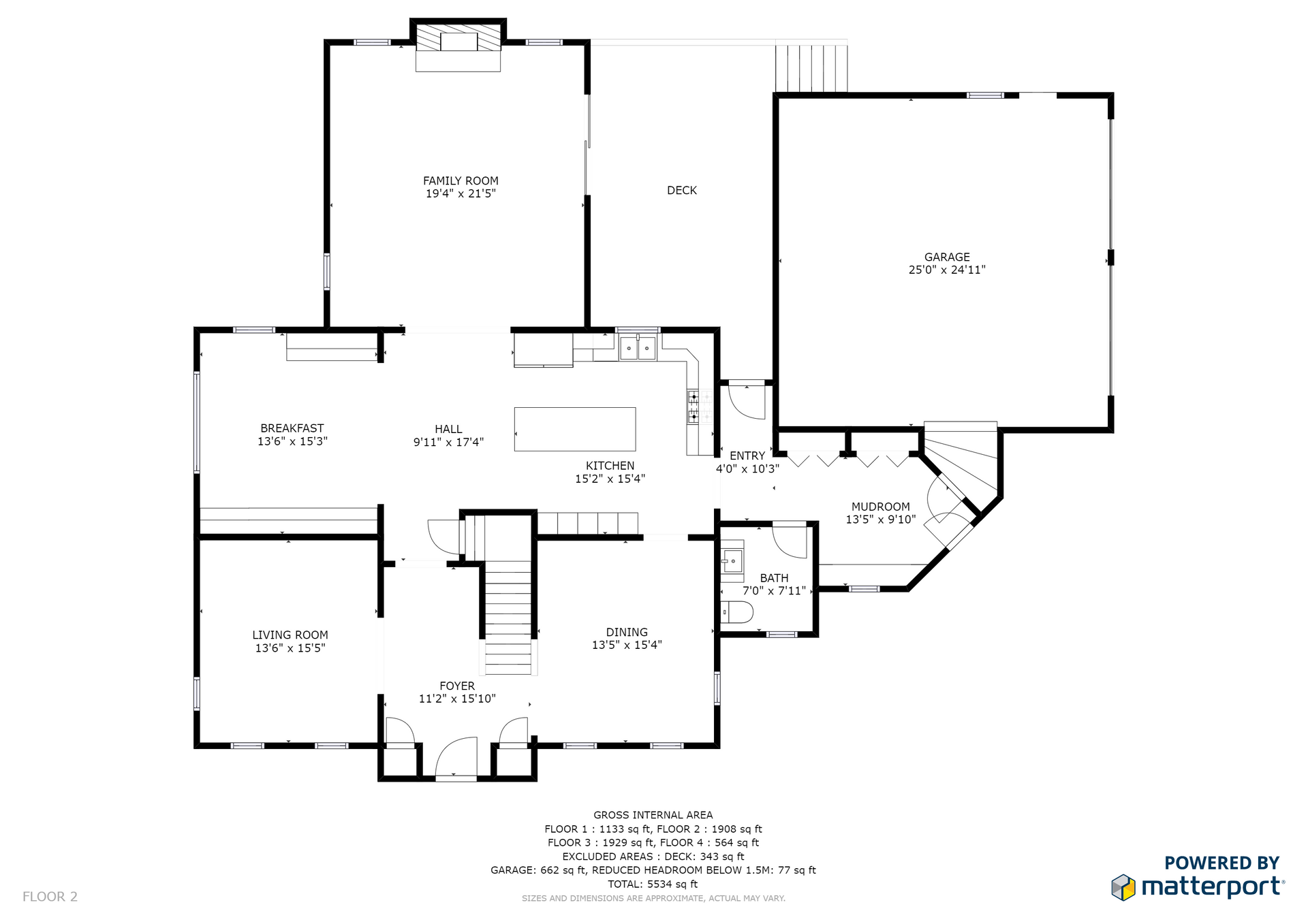
Stately custom colonial in the desirable Whiting Village has a gracious 2 story foyer that welcomes you into this spacious home that has been beautifully maintained. The home is highlighted with 9 ft ceilings, gleaming hardwood floors, detailed mouldings, updated baths, center Island kitchen, breakfast nook with built ins and a family room with floor to ceiling fieldstone fireplace that is a wonderful place for the whole family to enjoy watching winter sports on those cool evenings. The 3rd floor is a walk up and has a 5th bedroom, full bath and den that offers endless possibilities. The lower level is finished with office and media room and walks out to the level back yard which is perfect for all your back yard plans. This home has it all! A great master suite, au-pair/teen suite, spacious rooms, plenty of storage and a wonderful cul-de-sac location. Close to schools, restaurants, shopping, walking trails and Rt 3. Just Perfect!


Beds

5

Baths/Half

3/1

Garages

2

Interior

5977

Year

1995

Lot

30868

Contact

Liz McCarron
William Raveis Luxury Properties
Mobile: +1 617-347-4140